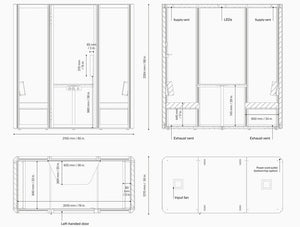
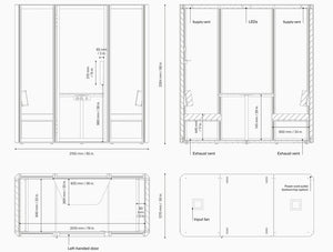
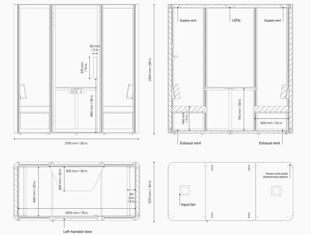
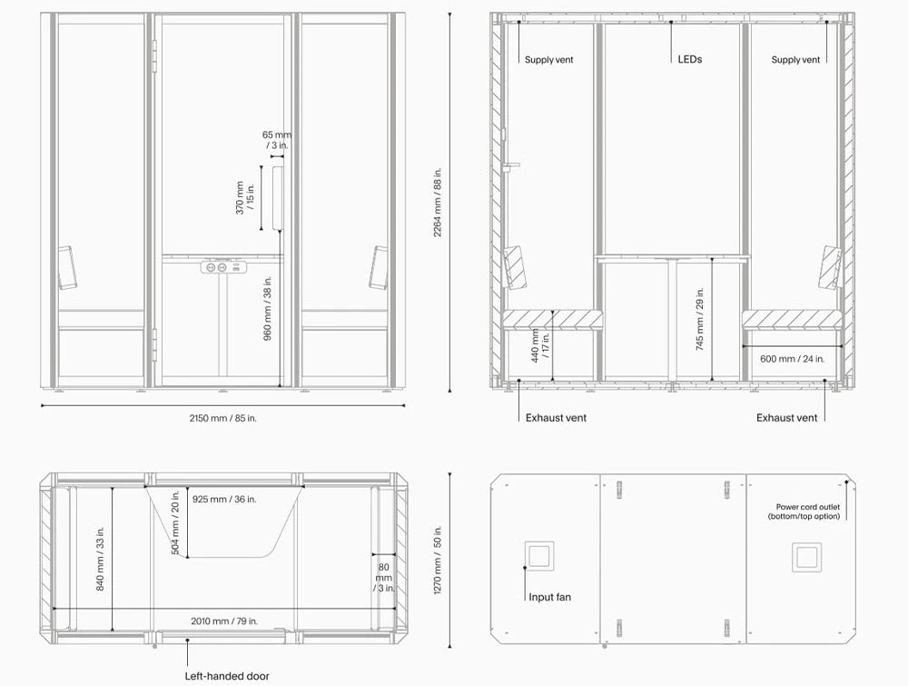
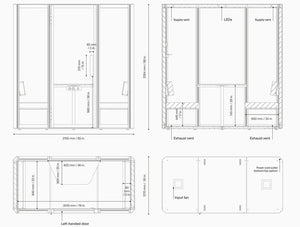
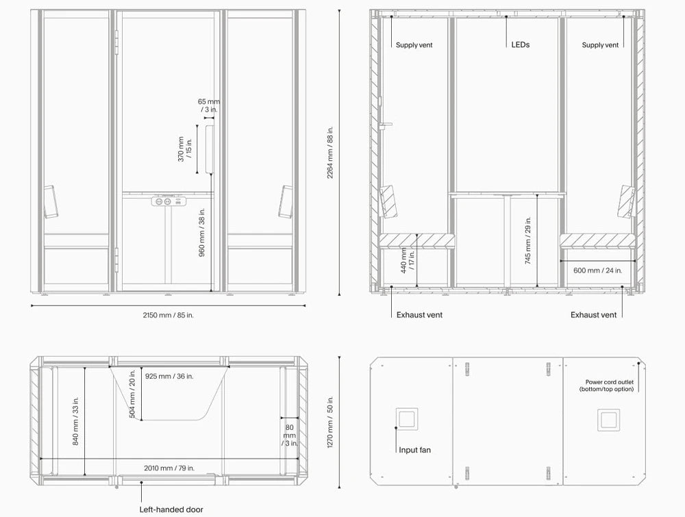
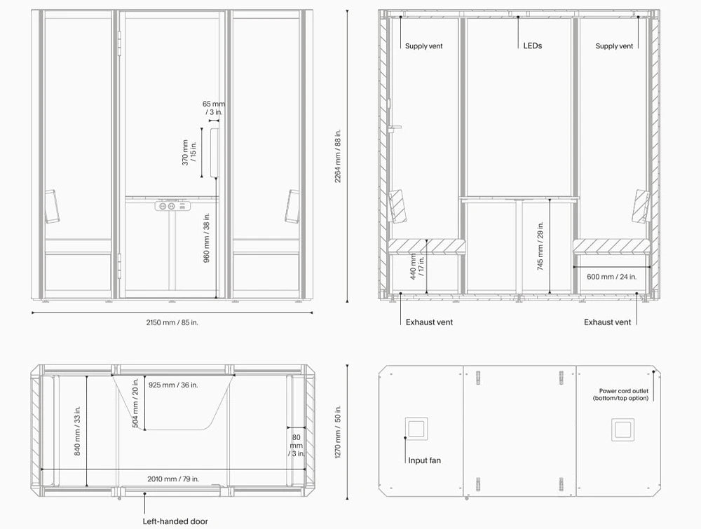
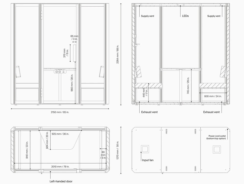
| Width | 215 cm |
| Height | 225 cm |
| Depth | 100 cm |
| Weight | 373 kg |
| Finish | QUOTE ME |
| Seating Capacity | 2 |








Product Code: MD-JETSON-L2-IN
Sleek and spacious, this two-person pod is designed for effective 1:1 meetings. Its ergonomic dimensions ensure it fits any space, and its premium-quality moulded foam seats offer comfort for even the longest brainstorming sessions. The most earth-friendly acoustic pod on the market